Description
REF:1004: A VENDRE Société immobilière à 5km du centre de MONS comprenant plusieurs bâtiments sur 14800m² de terrain. Composé de: 1 immeubles pour faire 6 à 8 appartements, 1 bâtiment de 300m² habitable et loué actuellement, 1 bâtiment de 300 m² pour logement ou activité commercial (voûte en brique et colonne de pierre bleu), un entrepôt, 1 hangar et divers autre annexes, énorme potentiel avoir absolument. Bâtiment loué: PEB G, chauffage centrale au mazout, DV bois avec superbe jardin arboré, le tout entièrement muré.Idéal pour entrepreneur et/ou investisseurs. Valeur rachat des parts de la société: 399.000€
Situation & points d'intérêts
Caractéristiques
| Prix | 399.000 € |
|---|---|
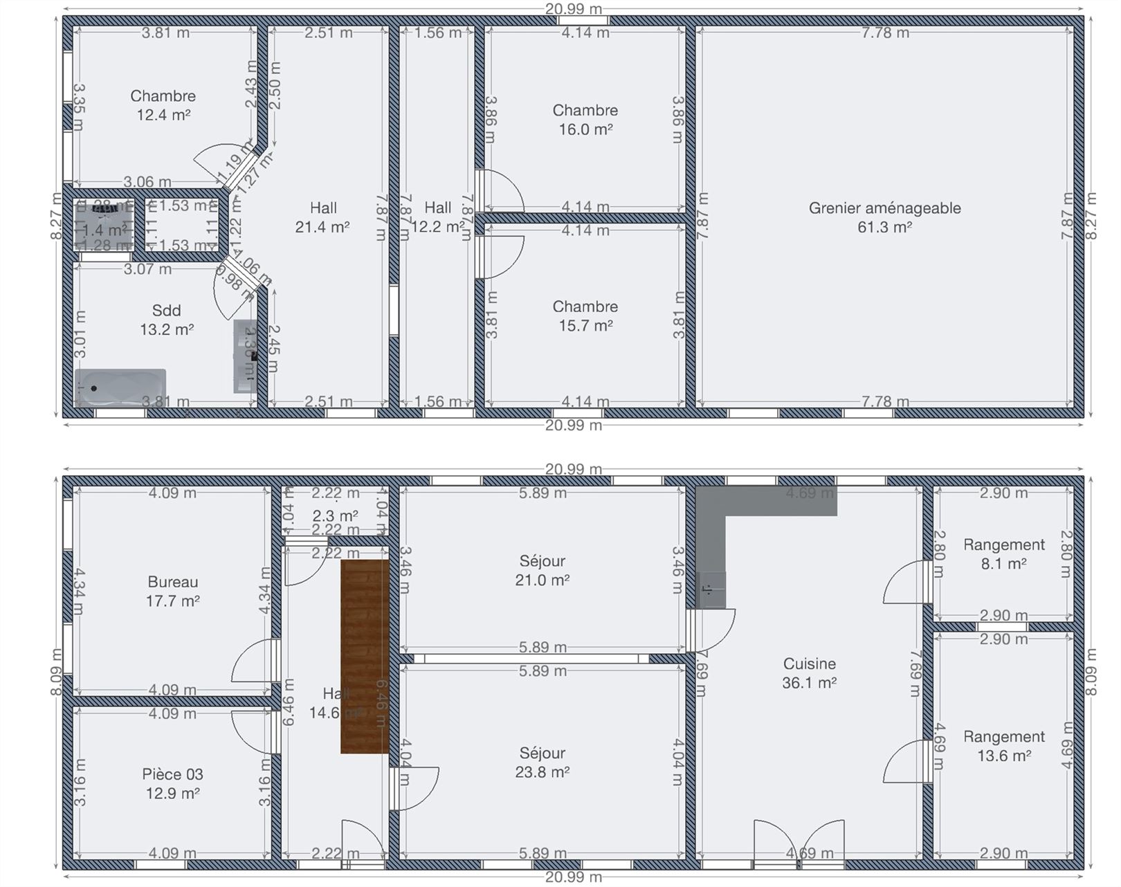
| Superficie habitable | 480 m² |
| Superficie terrain | 148 ares |
| Salle(s) de bain(s) | 1 |
| Salle(s) de douche(s) | 1 |
| Garage(s) | 10 |
| Type de bien | Maison |
| Nbre de chambres | 4 |
| Adresse | Chaussée de Maubeuge 527 |
| Code postal | 7022 NOUVELLES |
| E spec | 533kWh/an |
| N° certificat PEB | 20200914000407 |
| PEB |



