Description
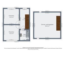
OPTION Ref 994: VIAGER OCCUPE (75&77 ans) Belle Maison de maître (210m² hab) 3 CH.(poss.4) rénovée 2023 (Chaudiere-Chassis-isolation mur).Composition: REZ: Hall (13m²), bureau (12m²), Gr. séjour (44m²), cuisine semi ouverte équipée, SDB, Buanderie, WC séparé, au 1er: 2 CH. (14-14 m²) et au second 1 grand Grenier isolé et aménagé (40m²). JARDIN de 350m² + terrasse, PEB en attente du nouveau, électricité conforme (bi-horaire), CC au GAZ, Bouquet: 35.000€ et rente mensuel de 750€ (indexée max. 2,5%) Plafonnée à 15 Ans, Rente complémentaire si abandon de l'usufruit (700€ à Vie). VV:300.000€ Frais d'achat +- 63.000€ (Notaire-enregistrement-agence).RC:604€.
Caractéristiques
| Bouquet | 35.000 € |
|---|---|
| Rente | 750 € |
| Type de viager | Occupé |
| Précompte immobilier | 604 € |
| Superficie habitable | 200 m² |
| Superficie terrain | 6.2 ares |
| Salle(s) de bain(s) | 2 |
| Salle(s) de douche(s) | 1 |
| Garage(s) | 1 |
| Type de bien | Maison |
| Nbre de chambres | 3 |
| Code postal | 7332 SIRAULT |
| E spec | 612kWh/an |
| N° certificat PEB | 20130530015588 |
| PEB |



